View Other: Cement Silos

RU KR CN

Port

Port

  • Material:  Wheat, Corn, Paddy, Soybean
  • Capacity:  3000-15000ton
  • Model:  Bolt Assembly Flat Silo
  • Auxiliary:  Bucket Elevator, Air Cushion Conveyors, Grain Safe Storage System

Introduction

SRON Port Silo Project Characters:

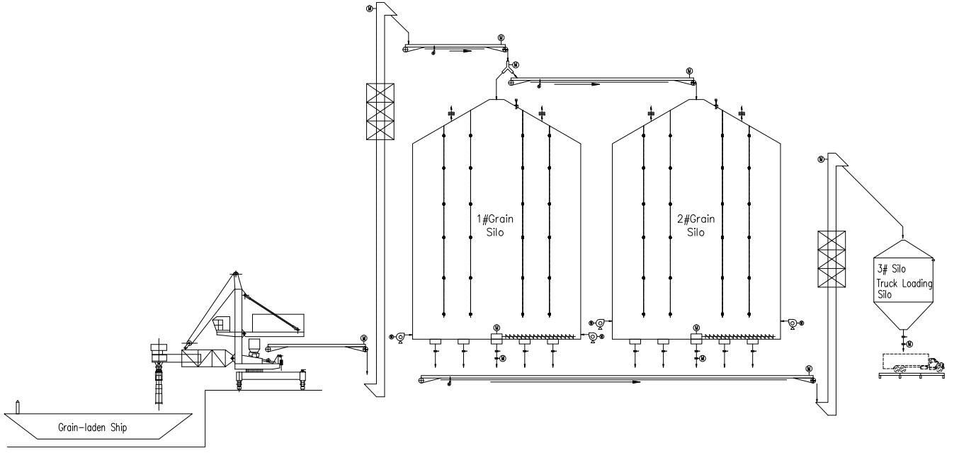
Port silo usually play the role of grain temporary storage.

  • The silo used in the port mainly transfer the grain from the grain storehouse by the waterway or receive and transfer the exporting grain, at the same time responsible for the bulk grain distribution, short-term storage, directly send the grain to the processing plant.
  • The silo used in the port generally with strong ability to receive and dispatch, high turnover coefficient, also considering fast unloading speed, so the silo needs larger storage capacity, handling equipment with large capacity.
  • The port silo is the intermediate links of acquisition and storage, acquisition and processing, acquisition and trading, with a large amount of working capacity.
  • The silos built in the port, requiring a high degree of mechanization and automation, storage machinery and equipment of high quality, stable operation, and low energy consumption.

Port Silo Process

 

Port Silo

Contact SRON-Grain Silo suppliers

Please feel free to give your inquiry in the form below. We will reply you in 24 hours.

  • * Name :

  • Country :

  • * Email :

  • Mobile :

  • Message :

    ( Please try to share us more information of silo project so our engineer can better help you .)